Menu
Forside Byg nyt hus Galleri Plantegninger Profil UH Ejendom Kontakt

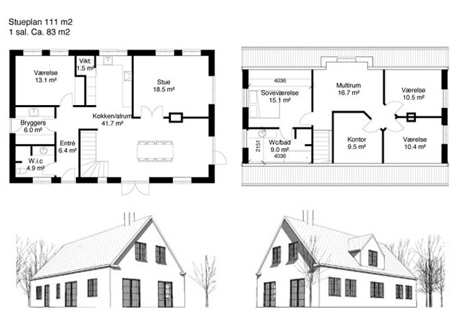
1 ½ plan

111 124 125 128 188

 

  • ❯ Udstillingshuse
  • ❯ Grunde til salg
  • ❯ Intern tegnestue
  • ❯ Egne håndværkere
  • ❯ Økonomisk tryghed
  • ❯ Samarbejdspartnere
  • ❯ Social ansvarlighed

 

  • ❯ Anbefalinger
  • ❯ Galleri
  • ❯ Visualiseringer
  • ❯ Plantegninger
  • ❯ Profil
  • ❯ Fuldmuret byggeri
  • ❯ Kontakt
  • ❯ UH Ejendom
  • ❯ Cookie-politik

  • Højskolebakken 26
    7171 Uldum
    CVR: 12225385
  • Tlf: 75 67 89 11
  • Email: kontakt@uldumhuse.dk
Følg os på Facebook

Følg os på Instagram